Measured Building Survey
About our Measured Building Surveys
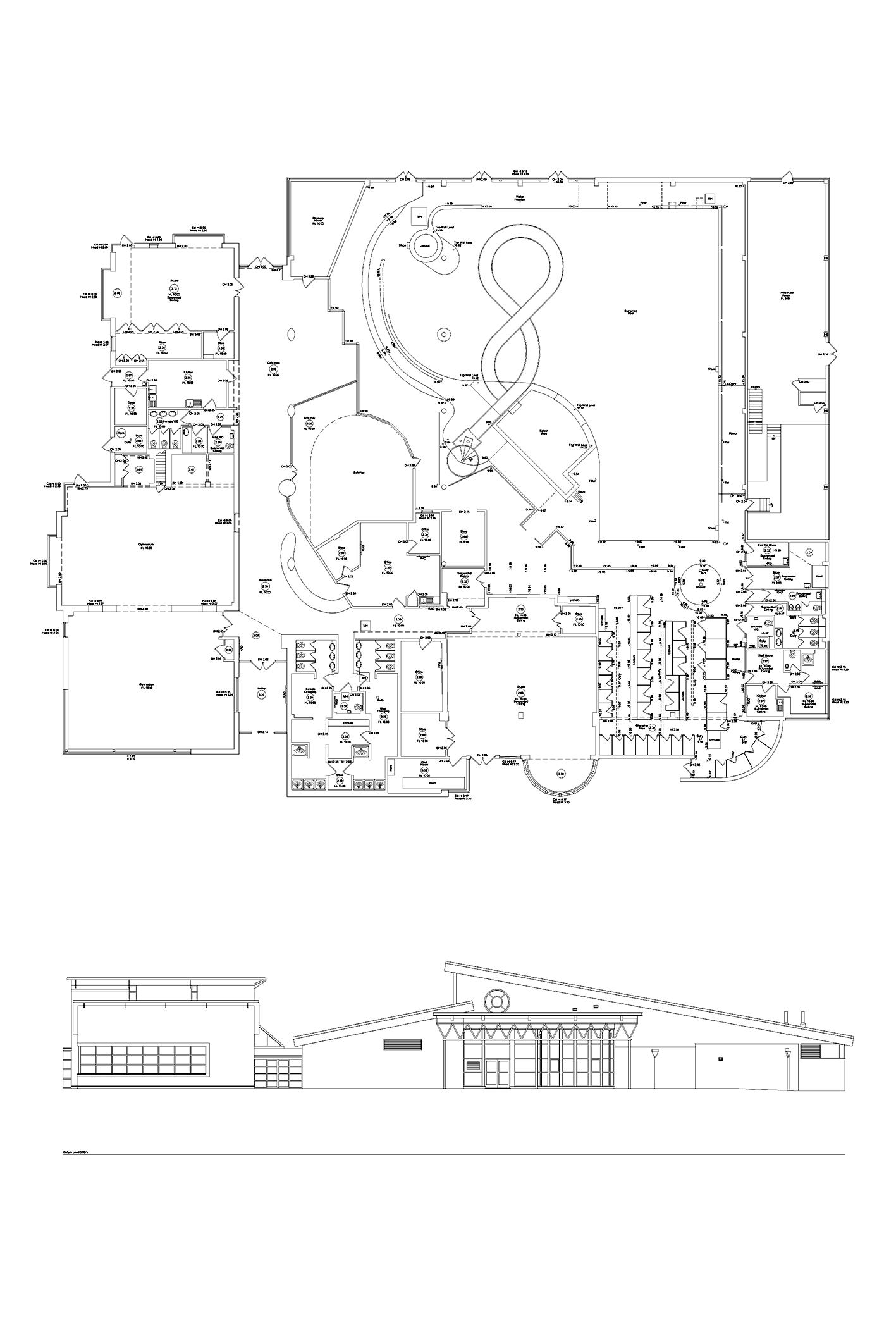
Measured Building Surveys across Newcastle & the UK
Spatial Geomatics specialises in measured building surveys, using the latest reflectorless technology to produce accurate plans. Our surveys range from small residential properties through to colleges and office blocks.
- Floor Plans
Floor plans are produced using a reflectorless instrument, portable palm top and bluetooth disto. This system allows floor plans to be produced in real time and provide a more accurate representation of the building.
- Elevations
These are surveyed using a reflectorless instrument and portable palm top. The same technology is used to carry out vertical checks of the building with measurements taken at different heights on the building face.
- Sections
Sections are produced by slicing through the building on a vertical plane to show the relationship between floors.

Can’t find what you’re looking for?
Get in touch with us and we will do our very best to help with any queries you may have…
FAQ’s
View allUsing an advanced high-speed laser surveying tool, our surveyors are able to capture vast amounts of coordinate and image data. The scanner ‘records’ a 3D picture of a site, structure or construction by measuring angles and distances to points on visible surfaces. It also records the colour intensity of these points and can be set to measure higher or lower levels of detail and complexity. Once all angles are captured, the data is gathered and processed by software that produces 3D deliverables. This gives us both real pictures and raw data for further processing.
Surveying within the railway environment requires specialist techniques as the modern railway is a dangerous place with safety issues often dictating the need for non-contact measurement using instrumentation such direct reading total stations, laser scanning as well as conventional equipment on line possessions at night. At Spatial Geomatics we carry out topographic surveys from existing level crossing that require a high degree of accuracy, monitoring of embankments and surveys of railway infrastructure and associated projects.
As a progressive survey company, Spatial Geomatics constantly monitors and utilises the latest surveying technology. GPS offers a complete solution for advance surveying including real time kinematic (RTK) and static surveying. The Trimble GPS combines advanced receiver technology and a proven system design to provide maximum accuracy and productivity. The Trimble GPS can be used as a wireless base station or rover.
Spatial Geomatics is equipped to carry out in-shore hydrographic surveys of reservoirs, lakes, canals, rivers and estuaries. Surveys are primarily undertaken with an array of echo-sounders and GPS equipment. Our hydrographic survey staff are all fully trained in boat handling and safety techniques and the boats are all launched from trailers.
Let’s talk or fill in our enquiry form today
Have you found what your looking for? Or simply require more information? Don’t hesitate to get in touch today or fill in our enquiry form, and we can arrange a call back.
Telephone: 01661 823000
Email: info@sgl.uk.com
"*" indicates required fields
Other Services:
View allWe strive to offer the best possible surveying services & competitive quotations for all your needs.